Сантехника Отопление Кондиционирование

От простого погодного регулятора до нулевого теплопотребления

24970 0
Опубликовано в журнале СОК №11 | 2006

Сразу оговорим, что под нулевым теплопотреблением понимается полное отключение дома от внешнего источника тепла. На самом деле, дом будет потреблять тепловую энергию, но немного, и это относительно небольшое количество тепла будет отниматься при помощи теплового насоса от канализационных стоков, вытяжного воздуха и грунта, расположенного непосредственно под домом.

Рис. 1. Схема сточно-гликолевого теплообменника

Рис. 1. Схема сточно-гликолевого теплообменника

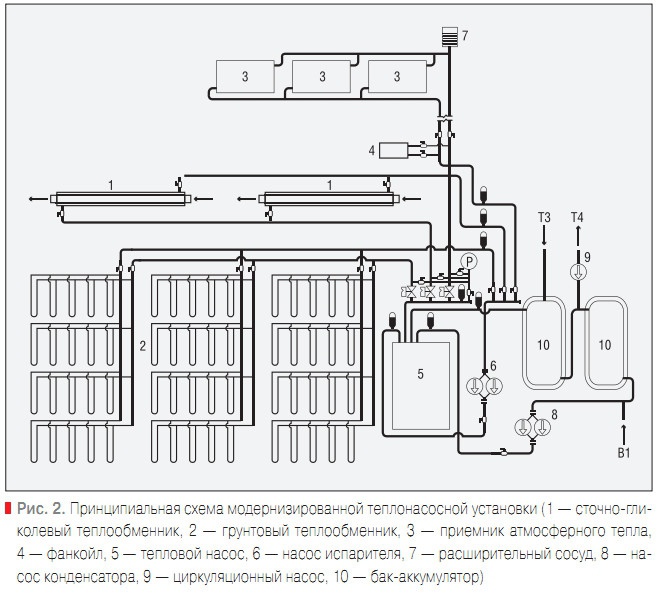
Рис. 2. Принципиальная схема модернизированной теплонасосной установки

Рис. 2. Принципиальная схема модернизированной теплонасосной установки

В хорошо утепленном жилом здании количество тепла, содержащегося в канализационных стоках дома, оборудованного системой горячего водоснабжения, достаточно для его использования в системе отопления. Вместе с тем, неравномерность расхода сточной жидкости в течение суток предполагает необходимость привлечения дополнительных источников низкопотенциального тепла.

Такими источниками могут служить теплый воздух, выбрасываемый системами вытяжной вентиляции, и масса грунта, на котором стоит дом. При этом тепло для системы горячего водоснабжения должно приготавливаться в емких электрических водонагревателях, потребляющих энергию исключительно в ночное время, в часы, когда действует льготный тариф.

В КиевЗНИИЭПе предпринимается попытка постепенной реализации этой идеи в здании общежития аспирантов института. Не имеющая аналогов работа по превращению типового жилого дома для малосемейных, образца середины прошлого века, в высокотехнологичный энергосберегающий объект, не может быть выполнена в одночасье. Работа по модернизации теплоснабжения здания началась в 1996 г., когда на пофасадных ветвях системы отопления были установлены погодные регуляторы.

Позднее, в соответствии с локальной Программой энергосбережения, выполняющейся в КиевЗНИИЭПе по указанию дирекции института, были последовательно установлены тепловой насос для ГВС в летний период, приемник теплоты атмосферного воздуха, интенсифицированный теплообменник системы ГВС с регуляторами температуры и воздухоохладитель в системе теплового насоса. В 2006 г. реализован очередной серьезный этап.

В действующую с 1998 г. систему теплонасосного ГВС включены сточно-гликолевые теплообменники и вертикальные грунтовые теплоприемники. Исходной целью при конструировании сточно-гликолевых теплообменников было создание устройства, которое ни в коей степени не должно препятствовать естественному движению сточной жидкости в заданном первоначальным проектом канализационной системы направлении.

Любые проблемы с канализационными стоками, которые могли бы возникнуть в результате их включения в несвойственную им работу по преобразованию низкопотенциальной энергии в тепловом насосе, поставили бы крест на всем проекте. Схема сточно-гликолевого теплообменника показана на рис. 1. Сточная жидкость проходит по трубной полости 1, образованной трубой диаметром 100 мм.

По канализационным чугунным трубам такого же диаметра сточная жидкость подходит к теплообменнику и отводится от него. Водный раствор этиленгликоля циркулирует в межтрубной полости 2, образованной внутренней трубой диаметром 100 мм и наружной трубой условным проходом 125 мм. С целью уменьшения гидравлического сопротивления этиленгликолевого контура и увеличения скорости обтекания поверхности теплообмена патрубки входа и выхода раствора условным проходом 32 мм направлены тангенциально.

Конфигурация существующей канализационной системы здания определила возможность установки в техническом подполье на прямых участках канализационных выпусков двух сточно-гликолевых теплообменников длиной 4 м, каждый с уклоном 0,02, соответствующим уклону замененных канализационных трубопроводов. Выбранная конструкция сточно-гликолевого теплообменника не является оптимальной с точки зрения эффективности теплообмена, но она отвечает оптимальной технологии удаления канализационных стоков из существующего здания.

Дальнейшие исследования покажут, насколько эффективно удастся с помощью такой конструкции отобрать от сточной жидкости ее тепловой потенциал. По специальному заказу сточно-гликолевые теплообменники были изготовлены из нержавеющей стали севастопольским предприятием «Теплообмен». Вертикальные грунтовые теплоприемники представляют собой заглубленные в грунт петли, выполненные из полиэтиленовых (PEX-a) трубопроводов диаметром 16x2,2 мм, длиной 3 м.

Трудоемкость ручного бурения скважин в существующем техническом подполье высотой 1,7 м исключает возможность устройства более глубоких грунтовых теплообменников. Однако, в связи с тем, что скважины эти находятся под зданием вне зоны активного воздействия низких наружных температур, можно предположить, что отбор теплоты грунта будет достаточно интенсивным по всей длине петли.

Всего на площади около 80 м установлено 60 петель с шагом 1,2 м. Общая длина трубопроводов грунтового теплообменника — 360 м. Над поверхностью грунта петли обвязаны стальными трубопроводами, образующими этиленгликолевый циркуляционный контур. Принципиальная схема опытной теплонасосной установки с новыми этиленгликолевыми контурами циркуляции представлена на рис. 2. В дополнение к существовавшим ранее приемникам тепла 3 и 4 установлены сточно-гликолевый теплообменник 1 и грунтовый теплообменник2 (см. фото).

Испаритель теплового насоса 5 впервые включен в гликолевый циркуляционный контур. Это позволит увеличить продолжительность работы теплового насоса в течение года. Прежде при понижении температуры охлажденной воды ниже 5°С автоматика безопасности выключала компрессор, и в относительно холодные сентябрьские ночи вода не подогревалась. Теперь в холодные дни лета тепловой насос будет отнимать тепло не от прохладного атмосферного воздуха, а от теплых стоков и грунта.

Отсутствие отечественного опыта использования таких нетрадиционных источников энергии, какими являются стоки жилого дома и грунт, расположенный под его фундаментами, не позволяет с точностью прогнозировать количественный эффект реконструкции, и только исследования, которые теперь проводятся, позволят оценить тот энергетический потенциал, который хранит в себе окружающая нас среда.

Выполненная в 2006 г. реконструкция общежития аспирантов — это, будем надеяться, не последнее усовершенствование системы теплоснабжения здания. После того, как дом будет должным образом утеплен и дооборудован комнатными вентиляционными рекуператорами, предполагается использовать тепловые насосы для отопления с полным отключением здания от тепловой сети.

Для этого придется расширить поле грунтовых теплообменников, расположив их под всем зданием, установить утилизаторы тепла на выбросе вытяжного воздуха и перевести существующую систему горячего водоснабжения с аккумуляторами теплоты на теплоснабжение от электрической энергии, используемой в ночное время, с оплатой по льготному тарифу. Если все это удастся сделать, то автономное теплоснабжение станет, наконец, свершившейся реальностью.

Комментарии
  • В этой теме еще нет комментариев
Добавить комментарий

Ваше имя *

Ваш E-mail *

Текст комментария