Сантехника Отопление Кондиционирование

Особенности и технические средства микроклиматической поддержки крытых ледовых стадионов

51022 0
Опубликовано в журнале СОК №7 | 2004

С инженерной точки зрения наиболее сложными, капиталоемкими и энергетически насыщенными являются спортивные сооружения типа крытых ледовых стадионов, в которых сочетаются между собой требования по одновременному поддержанию режимов охлаждения и нагрева в пределах единого строительного объема. Одной из особенностей подобных объектов является необходимость использования осушителей воздуха адсорбционного типа. В современной мировой практике почти все строящиеся, реконструируемые и вновь проектируемые крытые ледовые стадионы оснащаются такого рода осушителями. Приводится упрощенная методика инженерного расчета, а также способ технической реализации систем обработки воздуха, используемый на ряде действующих объектов.

Рис. 1. Преимущественные области использования сорбционного и конденсационного методов осушения воздуха

Рис. 1. Преимущественные области использования сорбционного и конденсационного методов осушения воздуха

Рис. 2. Результаты расчетов с использованием климатических параметров «А»

Рис. 2. Результаты расчетов с использованием климатических параметров «А»

Рис. 3. Результаты расчетов с использованием климатических параметров «Б»

Рис. 3. Результаты расчетов с использованием климатических параметров «Б»

Рис. 4. Типовой пример установки адсорбционных осушителей (план)

Рис. 4. Типовой пример установки адсорбционных осушителей (план)

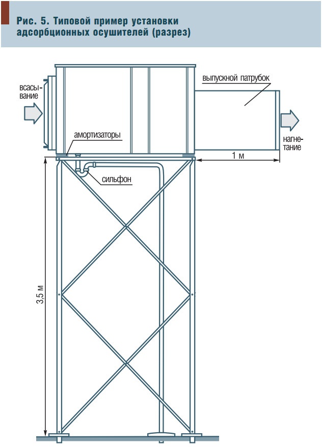
Рис. 5. Типовой пример установки адсорбционных осушителей (разрез)

Рис. 5. Типовой пример установки адсорбционных осушителей (разрез)

Табл. 1. Потребное количество свежего воздуха, м3/ч

Табл. 1. Потребное количество свежего воздуха, м3/ч

Табл. 2. Количество воды, расходуемое при восстановлении поверхности льда, кг

Табл. 2. Количество воды, расходуемое при восстановлении поверхности льда, кг

Табл. 3. Удельные метаболические влаговыделения, кг

Табл. 3. Удельные метаболические влаговыделения, кг

Табл. 4. Адсорбционные осушители воздуха производства фирмы HB COTES A/S, установленные на крытых ледовых стадионах

Табл. 4. Адсорбционные осушители воздуха производства фирмы HB COTES A/S, установленные на крытых ледовых стадионах

Федеральный закон «О физической культуре и спорте» №80-ФЗ от 29 апреля 1999 г. [1], а также концепция развития физической культуры и спорта в Российской Федерации на период до 2005 г., одобренная распоряжением Правительства Российской Федерации от 29.10.2002 г. за №1507-р [2], определяют государственную политику в области физической культуры и спорта.

Ресурсное обеспечение в области физической культуры и спорта предусматривает, наряду с мерами государственной поддержки, строительство и содержание физкультурно-оздоровительных, спортивных и спортивно-технических сооружений за счет местных бюджетов.

Так, например, целевой программой «Развитие физической культуры и спорта в Санкт-Петербурге» на 2003–2006 гг. [3] на указанные цели планируется финансирование в объеме не менее 1,5% от общей суммы доходов городского бюджета. Объемы нового строительства, установленные генеральной схемой развития и размещения объектов физической культуры и спорта в г. Москве до 2010 г. [4], базируются на использовании как бюджетных, так и внебюджетных источников финансирования.

Объем внебюджетного финансирования предполагается не ниже 60% от всех капитальных вложений в новое строительство. С инженерной точки зрения наиболее сложными, капиталоемкими и энергетически насыщенными являются спортивные сооружения типа крытых ледовых стадионов, в которых сочетаются между собой требования по одновременному поддержанию режимов охлаждения и нагрева в пределах единого строительного объема.

При этом следует отметить, что зимние виды спорта, такие как хоккей, скоростной бег на коньках и фигурное катание, являются традиционно наиболее популярными в России. В последнее время все большее распространение также получает керлинг. На текущий момент Москва располагает 19 ледовыми дворцами с единовременной пропускной способностью 1070 человек.

Дальнейшее развитие сети крытых ледовых стадионов предусматривается комплексной городской целевой программой «Спорт Москвы 2004–2006» [5], разработанной во исполнение Постановления Правительства Москвы №1171 от 25 декабря 2001 г.

В настоящее время действуют 22 нормативных документа по созданию и строительству физкультурно-спортивных объектов и сооружений, в том числе СНиПов (строительные нормы и правила) — 11, ТСН (территориальные строительные нормы) и МГСН (московские городские строительные нормы) — 4, ВСН (ведомственные строительные нормы) — 5, СН (строительные нормы) — 1, НД (нормативные документы) — 1.

Однако действующие и не отмененные нормативы по многим параметрам устарели и не отвечают современным мировым требованиям к инженерно-тех-ническому оснащению крытых ледовых стадионов, в частности, тех, которые предназначены для круглогодичного функционирования. Одной из особенностей подобных объектов является необходимость использования осушителей воздуха адсорбционного типа.

Причина использования осушителей воздуха именно адсорбционного типа, в отличие от конденсационных осушителей, заключается в особенностях их принципа действия, обеспечивающего повышенную эффективность при сравнительно низких температурах воздуха, а также благодаря их способности поддерживать низкую относительную влажность.

На рис. 1 представлены преимущественные области использования осушителей обоих типов. Из представленного на рис. 1 следует, что использование осушителей воздуха конденсационного типа является предпочтительным, например, в плавательных бассейнах, аквапарках и на других объектах, характеризуемых температурой воздуха порядка нескольких десятков градусов и относительной влажностью превышающей 50%.

В то же время, крытые ледовые стадионы имеют температуру воздуха над поверхностью льда приближающуюся к 0°С, а на удалении от поверхности льда, во избежание конденсации, относительная влажность воздуха должна поддерживаться на уровне существенно ниже 50%. Отсюда, использование на крытых ледовых стадионах осушителей воздуха адсорбционного типа не имеет альтернативы.

В современной мировой практике почти все строящиеся, реконструируемые и вновь проектируемые крытые ледовые стадионы оснащаются такого рода осушителями. Осушение воздуха преследует следующие основные цели [6]:

  • улучшение качества льда за счет предупреждения конденсации влаги на его поверхности;
  • предотвращение образования тумана над ледовой площадкой;
  • предотвращение конденсации влаги на прозрачных ограждениях хоккейной площадки;
  • сокращение энергетической нагрузки на холодильные машины за счет предотвращения утолщения слоя льда в результате конденсации влаги на его поверхности;
  • снижение ощутимых запахов;
  • предотвращение повреждений интерьера и коррозии металла за счет конденсации влаги на ограждающих конструкциях, подверженных радиационному выхолаживанию;
  • предотвращение капежа конденсируемой влаги с внутренней поверхности кровли в целях сохранения идеально гладкой поверхности льда (в особенности, на дорожках для керлинга).

В текущем году программные средства Arena EE Wizard [7] упрощенного моделирования работы инженерных систем микроклиматического обеспечения крытых ледовых стадионов (хоккейные площадки, катки для скоростного бега на коньках и фигурного катания, ледовые дорожки для керлинга и др.) включены в состав компьютерной системы моделирования CBIP (Commercial Building Incentive Program).

Указанная система моделирования реализуется в сети Internet, представляя собой самостоятельную компоненту комплексных компьютерных программ по энергетическому анализу зданий Energy Plus и DOE-2.1E [8], разработанных американской лабораторией LBNL — Lawrence Berkley National Laboratory (г. Беркли).

Система моделирования определяет почасовой расход энергии производит оценку энергетических затрат с учетом часовых показателей погоды (температура, скорость ветра, солнечная радиация), характеристик систем отопления, вентиляции, кондиционирования и других факторов.

Отечественная ассоциация АВОК проявила большой интерес к данной системе моделирования [9] и намерена активно ее внедрять в отечественную практику. В отсутствие полноценных возможностей компьютерного моделирования упрощенный расчет осуществляется путем составления влажностного баланса по следующей схеме.

1. Основным источником влаги в летний период (при круглогодичной эксплуатации крытых ледовых стадионов) является свежий воздух, подаваемый системами вентиляции.

В зависимости от географического местоположения объекта влагосодержание атмосферного воздуха колеблется в значительных пределах. Используя климатические данные по параметрам «А» и «Б», приведенные в СНиП 2.04.05–91* «Отопление, вентиляция и кондиционирование воздуха», производится расчет избыточного влагосодержания приточного воздуха в теплый период года по отношению к точке росы, значение которой принимается равным температуре поверхности льда.

В отечественной практике проектирования [10] расчетная температура поверхности льда составляет –8°С. В соответствии с рекомендациями ASHRAE [11] расчетная температура поверхности льда дифференцирована в зависимости от вида проводимых спортивных мероприятий следующим образом:

  • хоккей — –5,5°C (22°F);
  • фигурное катание — –3,3°C (26°F);
  • керлинг — –4,4°C (24°F);
  • катание на коньках — –2,2°C (28°F).

Вышеуказанные расчетные значения определяют количество влаги в граммах, которое необходимо удалить из каждого килограмма воздуха, поступающего внутрь крытого стадиона.

Результаты расчетов для некоторых городов России с использованием климатических параметров «А» и «Б» представлены соответственно на рис. 2 и 3. В общем случае расчет сводится к следующему:

А) По данным СНиП 2.04.05–91* для конкретного города определяется температура (t, °С) и удельная энтальпия (h, кДж/кг) воздуха в теплый период года. Далее вычисляется его влагосодержание (Xout, г/кг) с использованием следующей формулы: Xout = (h – t і Cpa)/ (hg + t і Cpv) і 103, (1) где: Cpa — удельная теплоемкость сухого воздуха при постоянном давлении при 0°С (1 кДж/(кг•°С), Cpv — удельная теплоемкость паров воды при постоянном давлении при 0°С (1,805 кДж/(кг•°С), hg — удельная энтальпия насыщенных водяных паров при 0°С (2501 кДж/кг).

Б) В зависимости от целевого назначения крытого ледового стадиона (культивируемые виды спорта) выбирается расчетное значение температуры поверхности льда, рассматриваемое как точка росы (tdp, °С).

Соответствующее влагосодержание воздуха (Xin, г/кг) непосредственно над поверхностью льда рассчитывается с использованием следующей последовательности формул: Xin = (MV/MA) і і (PS/(P – PS) і 103, (2) где: MV — молекулярная масса воды (0,01802 кг/моль), MA — молекулярная масса воздуха (0,02896 кг/моль), P — атмосферное давление (101330 Па на уровне моря), PS — парциальное давление насыщенных паров воды при температуре tdp, Па. Последний из указанных параметров вычисляется по эмпирической формуле, справедливой в температурном диапазоне от –100 до 0°С. PS = exp(g/T + h + k і T + l і T2 + + m і T3 + n і T4 + q і ln(T)], (3) где: g = –5,6745359 і 103, h = 6,3925247, k = –9,677843 і 10–3, l = 6,22115701 і 10–7, m = 2,0747825 і 10–9, n = –9,484024 і 10–13, q = 4,1635019, T = tdp + 273,15, K. Комбинируя последние два выражения, имеем следующую формулу для практических расчетов: Xin = 622/[P і exp(–g/T – h – – k і T – l і T2 – m і T3 – (4) – n і T4 – q і ln(T)) – 1].

В) Количество избыточной влаги (X, г/кг), поступающей внутрь крытого стадиона, определяется по формуле: X = Xout – Xin. (5) Потребный влагосъем по рассматриваемой компоненте влажностного баланса (Dfresh hair, кг/ч) составит: Dfresh hair = X і r і L і 10–3, (6) где: r — плотность воздуха (1,2 кг/м3), L — расход свежего воздуха, м3/ч.

В отечественной практике [10] расход свежего воздуха определяется в количестве не менее 80 м3/ч на одного занимающегося спортсмена и не менее 20 м3/ч на одного зрителя. Согласно стандарту ASHRAE 62-1989 количество свежего воздуха в расчете на одного человека должно составлять 25,5 м3/ч (15 cfm).

Вместе с тем количество свежего воздуха должно составлять не менее 9 м3/ч на м2 ледовой поверхности (0,5 cfm per sq foot). Последний параметр, как правило, является определяющим при числе зрителей менее 500 человек. Для типовых ледовых площадок потребное количество свежего воздуха представлено в табл. 1.

2. Технология восстановления поверхности льда предусматривает использование горячей воды, имеющей температуру от 600°C (1400°F) до 700°C (1600°F). Количество воды (Wresurf, кг), расходуемое при каждом очередном восстановлении поверхности льда, представлено в табл. 2. Потребный влагосъем по рассматриваемой компоненте влажностного баланса (Dresurf, кг/ч) составит: Dresurf = Wresurf і n/Tday, (7) где: Tday — количество часов, в течение которых ледовый стадион эксплуатируется на протяжении суток, час/сутки, n — количество циклов восстановления поверхности льда на протяжении времени Tday.

Как правило, восстановление льда происходит от 4 до 8 раз в сутки. Таким образом, при Tday = 24 ч. Dresurf может достигать 30 кг/ч.

3. Метаболические выделения влаги обусловлены присутствием людей на стадионе. Удельные метаболические выделения [6] сведены в табл. 3. Потребный влагосъем по рассматриваемой компоненте влажностного баланса (Dmet, кг/ч) составит: Dmet = е2i = 1wimet і pi і 10–3, (8) где: pi — вместимость ледового стадиона по категориям посетителей (i = 1,2), чел.

Итоговый влажностный баланс (D, кг/ч) определяет потребный влагосъем внутри ледового стадиона: D = Dfresh air + Dresurf + Dmet . (9) Типовой пример установки адсорбционных осушителей воздуха представлен на рис. 4 и 5. Среди производителей осушителей воздуха адсорбционного типа существенно выделяется фирма HB COTES A/S (Дания), поставляющая широкий спектр агрегатов различных типоразмеров.

Основной элемент осушителя — ротор — на 82% заполнен высоко эффективным силикагелем на стекловолоконном носителе. Высокий процент заполнения силикагелем, а также оптимальный размер пор насадки обеспечивают интенсивную адсорбцию избыточной влаги при минимальном потреблении энергии.

В наибольшей степени специфике обработки воздуха крытых ледовых стадионов отвечают осушители воздуха серии CR..., использующие элек-трический нагрев регенерирующего воздушного потока до температуры 100–1400°С, а также серии CRT...G, использующие газовые нагреватели и регулирование производительности по заданному значению точки росы.

Перечень крытых ледовых стадионов, на которых установлены адсорбционные осушители воздуха производства фирмы HB COTES A/S, приведен в табл. 4.

  1. Федеральный закон от 29 апреля 1999 г. №80-ФЗ «О физической культуре и спорте в Российской Федерации» http://www.2r.ru/laws/zak80.htm
  2. Концепция развития физической культуры и спорта в Российской Федерации на период до 2005 г., утвержденная распоряжением Правительства Российской Федерации от 29.10.2002 г. за №1507-р http://www.bre.ru/laws/14833.html
  3. Целевая программа «Развитие физической культуры и спорта в Санкт-Петербурге» на 2003–2006 гг. http://www.assembly.spb.ru/news/ documents/2003/131.htm
  4. Программа строительства объектов физкультуры и спорта в Москве до 2010 г. http://www.mossport.ru/press/ Stroitelstvo_do_2010_goda.doc
  5. Комплексная целевая программа развития спорта «Спорт Москвы», 2003, http://www.mossport.ru/press/ Program_Sport_Moscow.doc
  6. Indoor Ice-Rink Dehumidification http://www.desert-aire.com/pdf/AN/An13.pdf
  7. Arena Buildings and CBIP http://oee.nrcan.gc.ca/newbuildings/ files-fichiers/ArenaTechGuide.pdf
  8. EnergyPlus and DOE-2.1E Software http://www.eere.energy.gov/buildings/ energy_tools/doe_tools.html
  9. Программное обеспечение для систем отопления, вентиляции, кондиционирования воздуха и теплоснабжения, АВОК, №3, 2003, стр. 96.
  10. Справочное пособие к СНиП 2.08.02–89 «Проектирование спортивных залов, помещений для физкультурно-оздоровительных занятий и крытых катков с искусственным льдом».
  11. Sports Arenas http://cipco.apogee.net/ces/btsh.asp 12. Control of Condensation in Curling Rinks http://irc.nrc-cnrc.gc.ca/cbd/cbd035e.html
Комментарии
  • В этой теме еще нет комментариев
Добавить комментарий

Ваше имя *

Ваш E-mail *

Текст комментария